编委案例丨大理•彼岸
一首《去大理》勾起无数人一路向西的念头,美丽的洱海边让无数人忘却了烦恼,嘈杂的都市似乎已成为一种压力的根源,在这里晒晒太阳,轻柔的海风犹如一双柔美的手抚摸着你的发丝,无不是一种贴心的安慰,空气中飘过一缕淡淡的花香,不知不觉中你已经忘却了那些过往,陶醉于此。
● 精品案例 ●

厌倦了城市里的灯红酒绿,不妨来这里,贴近自然享受纯朴;看惯了一成不变的山光水色,不妨来这里,感受四季变迁,感受一花一世界的惊喜。洱海湖畔的静美风景,带来的是与世无争的悠闲生活。

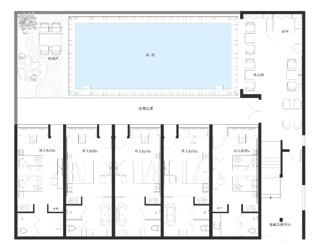
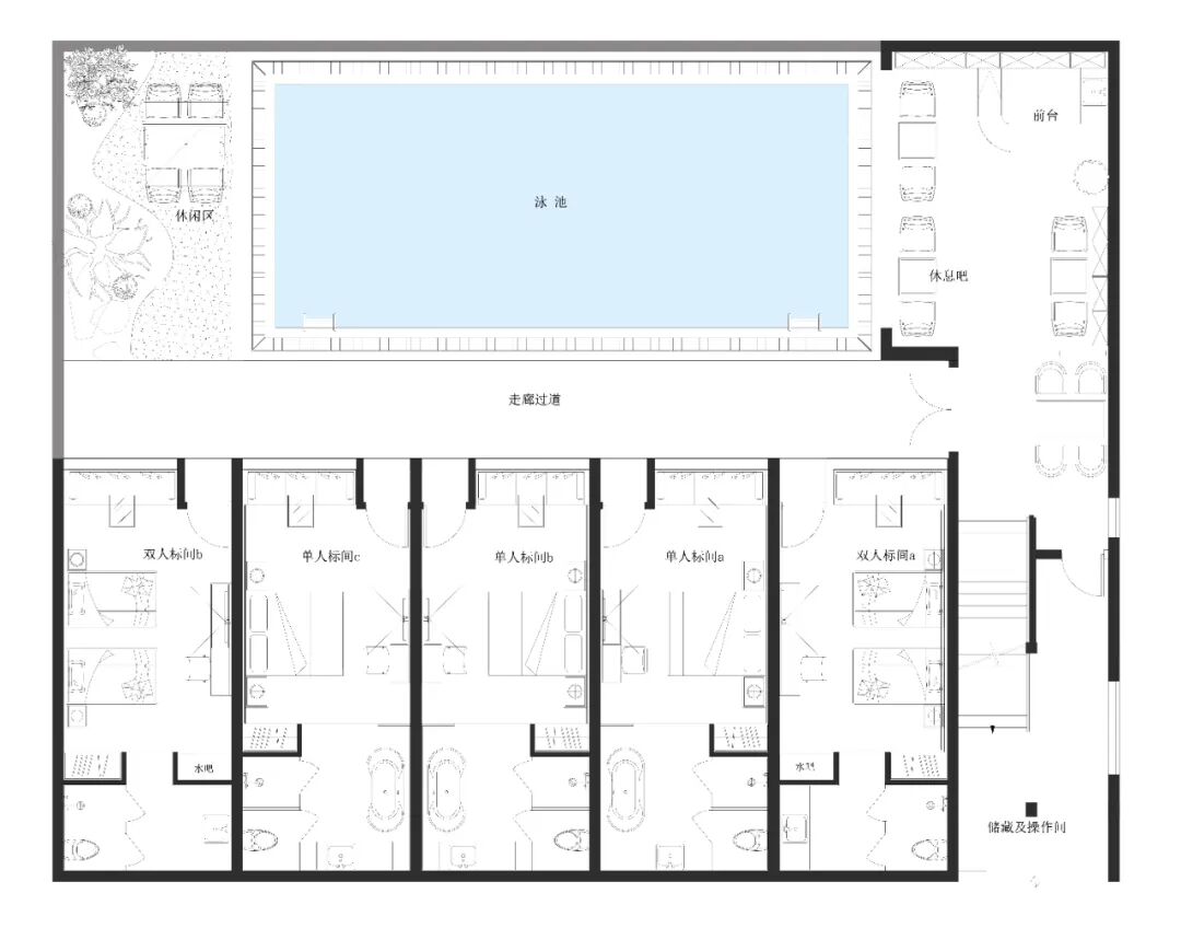
这是一个当地白族的住宅改造,坐落于洱海东面的一个村落,西面则是大理苍山,优越的视线成为这个民宿最好的设计元素。结合得天独厚的自然环境,在屋顶设计的无边水景,宛如一面镜子,当阳光落下的那一瞬间将人带入一种仙境,成为游玩和留影的绝佳空间。











建筑空间为一个小四合院,在保持民族特色的同时,设计师更多考虑到旅游者的舒适感和体验感,在有限的庭院中设计了泳池,弥补了游客不能下洱海游泳的遗憾,同时也营造了与其他客栈不同的效果,创造了一种打开房门就可以游泳的豪华体验。

泳池的墙面设计了精细逼真的壁画,增强了泳池的空间感。

平面图


康杰程
《中国室内》微信编委/本周执行编委
昆明顶尖设计机构创始人
职务:
昆明顶尖设计机构酒店分院院长
云南无界创意设计有限公司总经理
云南九合方寸艺术陈设机构合伙人
昆明EUREKA创意集团合伙人
昆明市建筑室内设计协会理事会副会长
云南省旅游业协会环境与艺术设计分会第一届常务理事
居然顶层(云南)设计中心特约设计师
【云南设计10+1】设计讲师
荣誉:
2017年云南室内设计影响力人物
2017/2018年 40 UNDER 40 中国(云南)设计杰出青年
2018年CIID中国优秀青年设计师大区20强
2019年云南室内设计TOP40杰出设计师









京公网安备 京B2-20242688